Оригинальные каталоги
| № | Номер | Наименование | Цена | |
|---|---|---|---|---|
| 160-00-28.09.000 | 160-00-28.09.000 | Установка перегородок | Нет в продаже |
|
| 160-00-28.00.001 | 160-00-28.00.001 | Шайба | Нет в продаже |
|
| 160-00-28.00.020 | 160-00-28.00.020 | Планка | Нет в продаже |
|
| 160-00-28.00.010 | 160-00-28.00.010 | Планка | Нет в продаже |
|
| 160-00-28.05.000 | 160-00-28.05.000 | Установка топливопроводов | Нет в продаже |
|
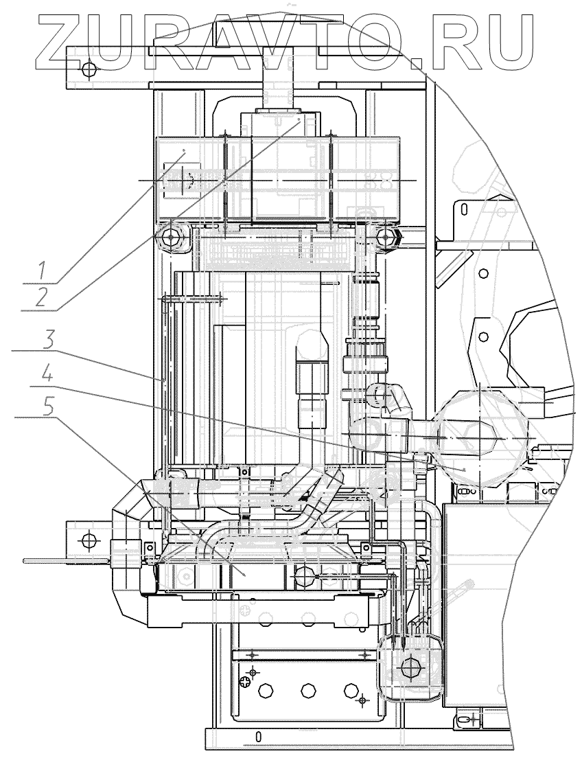
| 1 | 160-00-28.01.000-02 | Установка глушителя | Нет в продаже |
|
| 2 | 160-00-28.02.000-03 | Установка насоса | Нет в продаже |
|
| 3 | 160-00-28.07.000 | Установка блока радиаторов | Нет в продаже |
|
| 4 | 160-00-28.04.000 | Установка воздухоочистителя | Нет в продаже |
|
| 5 | 02190000720 | Дизельный двигатель | Нет в продаже |
|
160-00-28.09.000
160-00-28.00.001
160-00-28.00.020
160-00-28.00.010
160-00-28.05.000
1
2
3
4
5
Содержащиеся в справочниках-каталогах запасные части и детали носят исключительно информационный характер