Назад

Оригинальные каталоги

zoom-in zoom-out enlarge shrink circle-right circle-left file-text2 info cart
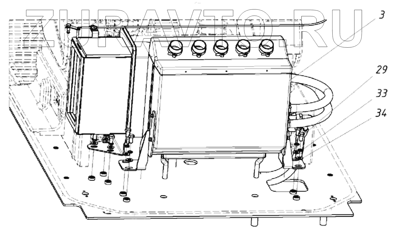
Номер Наименование Цена
1 212030100000 00 Металлоконструкция пола Нет в продаже
2 225.03.03.00.000-25 Установка пультов Нет в продаже
3 202030300000 00 Установка климатической системы Нет в продаже
5 225-05-45.21.000 Гидроуправление в кабине Нет в продаже
6 225-05-30.30.000-01 Электроуправление в кабине Нет в продаже
10 202030000100 00 Основание Нет в продаже
10 202030000007 00 Крышка Нет в продаже
15 212020200018 00 Коврик Нет в продаже
16 202030000002 00 Планка Нет в продаже
17 202030000003 00 Фильтр Нет в продаже
18 202030000004-02 Решетка передняя Нет в продаже
19 202030000005 00 Лист перфорированный Нет в продаже
25 001426210001 00 Втулка уплотнительная Нет в продаже
28 000026400131 01 Болт Нет в продаже
29 000026400225 01 Болт Нет в продаже
31 000026420213 01 Винт Нет в продаже
32 000026420313 01 Винт Нет в продаже
33 000026440206 01 Шайба Нет в продаже
34 000026440610 01 Шайба Нет в продаже
35 000026440205 01 Шайба Нет в продаже
36 000026440608 01 Шайба Нет в продаже
38 000026410231 01 Гайка заклеп. шестигр. Нет в продаже
39 000026430038 01 Винт Нет в продаже
3
29
33
34
100%
Содержащиеся в справочниках-каталогах запасные части и детали носят исключительно информационный характер